{[['
']]}
']]}Seperti rumah-rumah di lingkungan masyarakat pedesaan banyak ditemukan model rumah besar satu lantai. Pemeliharaanya tentu sangat mudah dan biayanyapun akan lebih murah dibandingkan dengan pemeliharaan bangunan rumah lebih dari satu lantai. Juga, dari sisi penghuni.. semakin tua penghuni rumah tidak akan dapat memanfaatkan rumah lantai dua.
Tidak perlu sebuah rumah mewah untuk menambah kenyamanan dan fungsi dari sebuah rumah. Sebuah rumah sederhana mampu untuk memenuhi hal-hal tersebut apabila pembangunannya betul-betul disesuaikan dengan kebutuhan utama pemiliknya akan sebuah rumah. Dengan pembuatan model rumah minimalis mampu menampung kebutuhan penghuninya apabila pembagian ruangannya dilakukan dengan tepat. Umumnya, sebuah rumah memiliki ruangan-ruangan untuk berbagai kepentingan, misalnya ruang tidur, ruang makan, ruang keluarga, dapur dan kamar mandi.
Secara teori, rumah sederhana yang memenuhi kriteria rumah sehat tidak harus mahal. Sebuah rumah sederhana dengan harga murah sangat mungkin untuk dibangun dengan tetap memenuhi kriteria rumah sehat. Apalagi bila dibangun di daerah pinggiran kota (sub-urban). Masalahnya istilah “harga” adalah sesuatu yang pengertiannya sangat relatif, dan berbeda antara satu orang dengan orang lainnya.
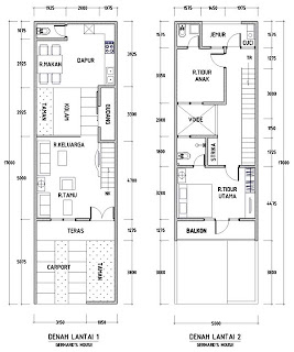
Berikut contoh gambar ato denah model rumah sederhana:
Model rumah dua lantai
Demikian posting kali ini yang membahas model rumah sederhana semoga bermanfaat bagi sobat sekalian.thaks

.jpg)
.jpg)



